Nuova scuola primaria
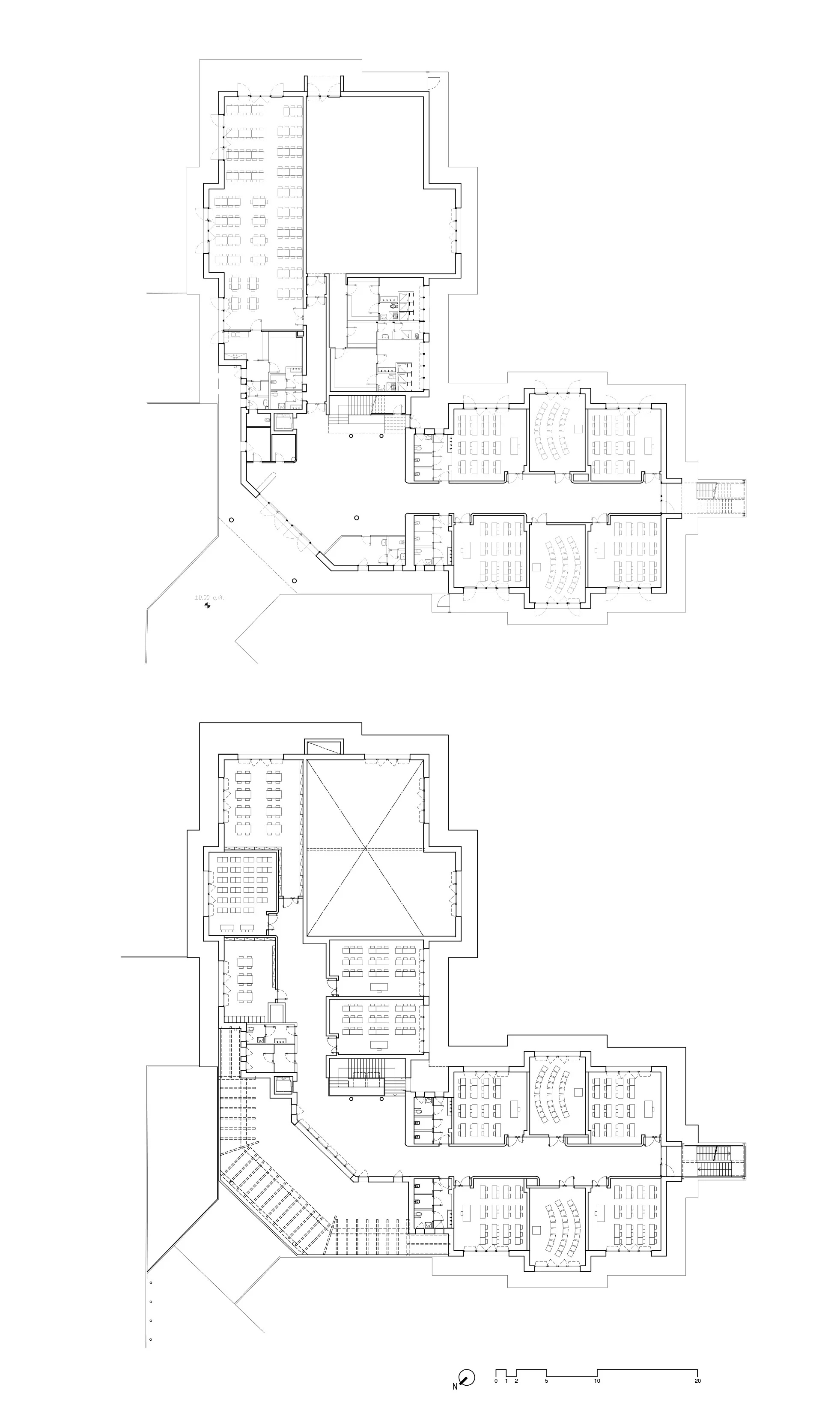
L’intervento realizzato consiste in una scuola per 300 alunni, a servizio della frazione Postioma del Comune di Paese (TV). Il nuovo edificio è collocato al centro di un’area già in parte occupata da impianti scolastici e sportivi. La posizione centrale al lotto, lontana dalle strade, consente la piantumazione di una cortina di verde che oltre a garantire un ombreggiamento nei periodi estivi, formerà anche una barriera acustica per tutti i rumori derivanti dal traffico veicolare.
La struttura didattica della nuova scuola elementare di Postioma è organizzata in dieci classi con due sezioni per classe. In accostamento alle aule didattiche sono state ricavate 5 aule interciclo, dove si sviluppano attività alternative e di approfondimento didattico (visione audiovisivi, laboratorio di informatica, laboratorio musicale, etc. etc.). Al piano terra è stata collocata la mensa autonoma e la palestra indipendente, usufruibile anche dalla cittadinanza durante il periodo di inattività della scuola. Al primo piano trova posto l’aula insegnanti, la biblioteca i servizi igienici per il personale docente e non docente.
Luogo
Italia - Paese (TV)
Collaboratori
Ing. Renato Zanatta
Committente
Comune di Paese
Dati dimensionali
6.000 mq superficie lotto
2.500 mq superficie edificata
Cronologia
2012 progettazione
2012-2014 realizzazione
Planimetria
Piante
Sezioni
