Nuovo centro sportivo a Magglingen
Il progetto è relativo alla partecipazione ad un concorso per la realizzazione di un nuovo centro sportivo a Magglingen, comune svizzero del Cantone di Berna.
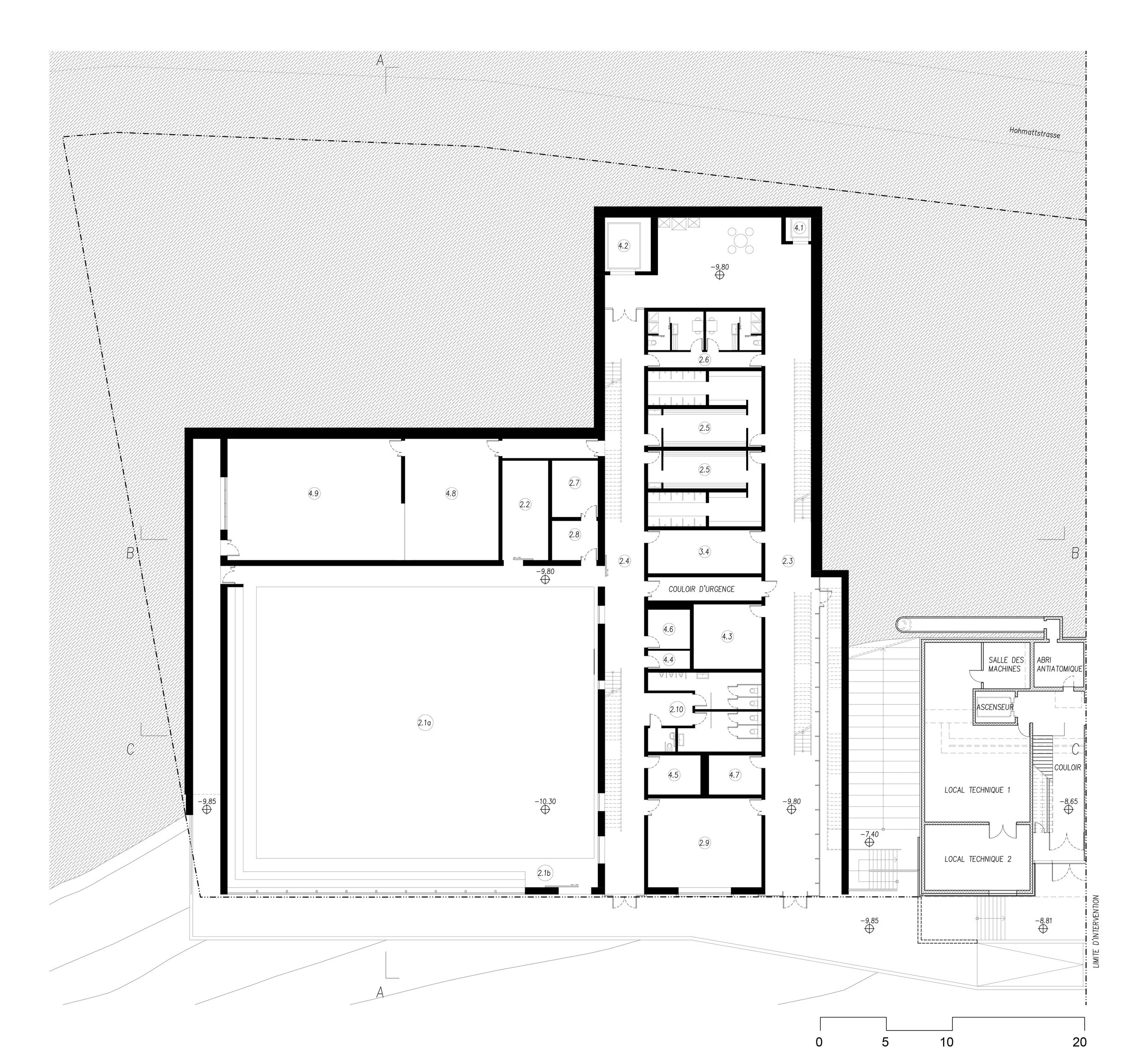
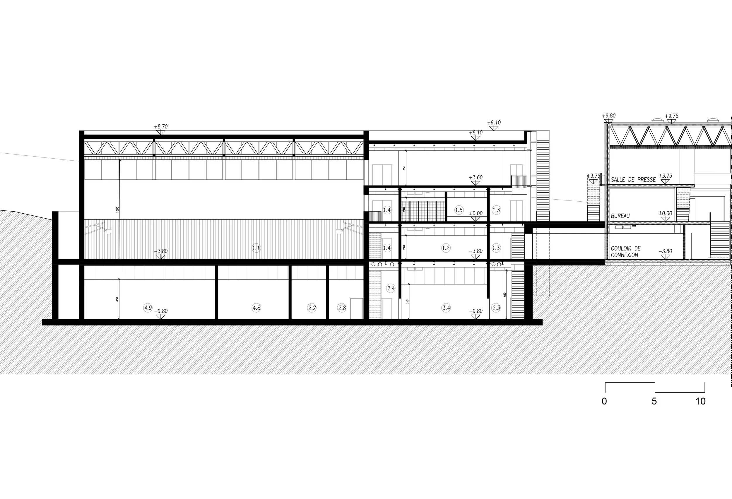
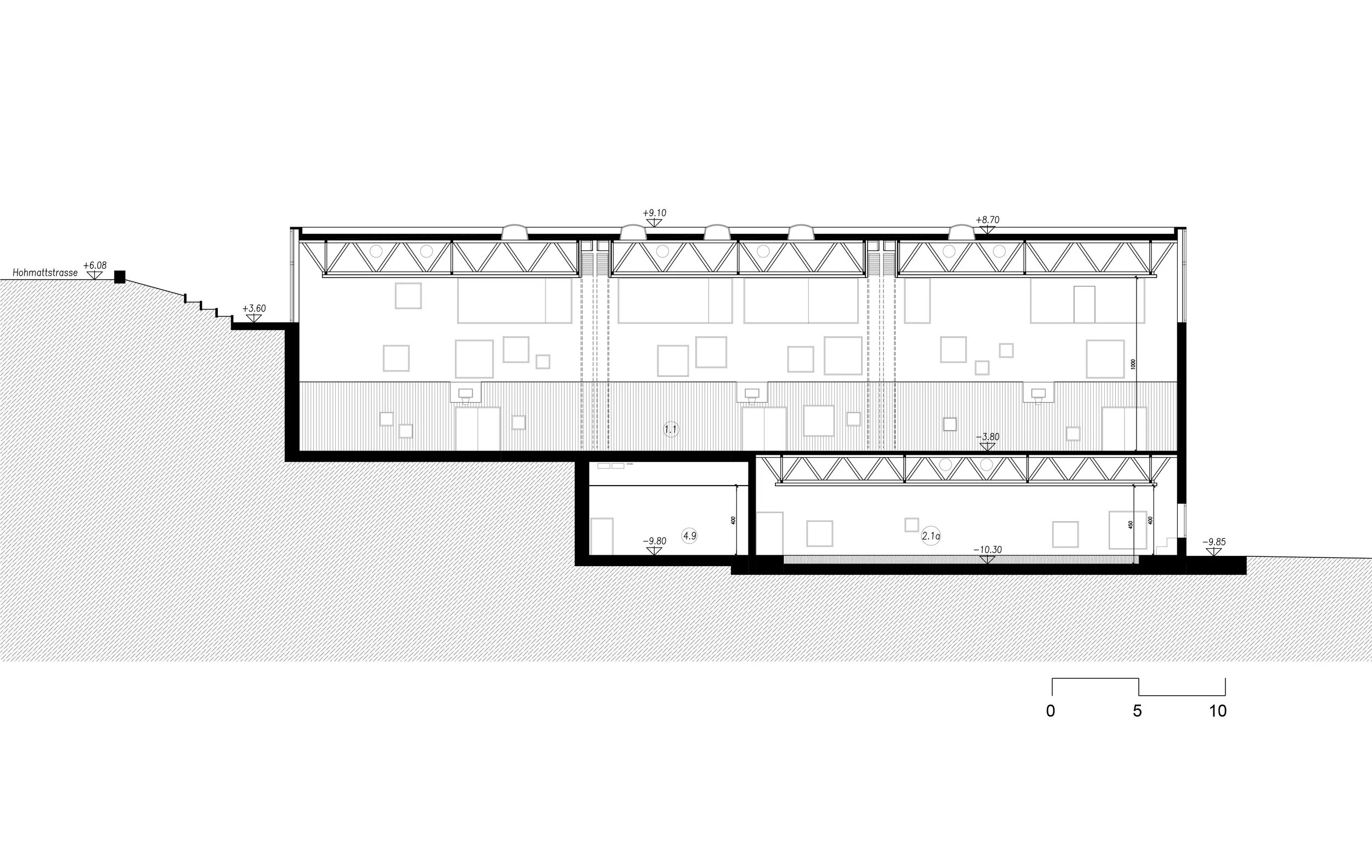
Il nuovo edificio, dalle dimensioni complessive di 57 m x 45 m, si affianca alla palestra esistente Toto-Halle ed è articolato su quattro livelli, due dei quali completamente interrati; al livello più basso, a quota -9.80 m, trovano spazio la sala di lotta svizzera e tutti i locali tecnici; ai livelli superiori è ospitata la sala per lo sport triplo, di 28 m x 49 m, i servizi, gli spogliatoi per gli atleti e i locali per il deposito degli attrezzi. I solai di entrambe le sale sono costituiti da grandi coperture reticolari in acciaio. All’ultimo piano è stata collocata la galleria, la sala massaggi e una sala riunioni.
Le pareti esterne del nuovo edificio sono rivestite con pannelli di lamiera metallica microforata, mentre il prospetto est, rivolto verso la palestra esistente, è quasi interamente vetrato e si contraddistingue per la presenza di una scala esterna in acciaio.
Luogo
Svizzera - Magglingen
Committente
BASPO – Ufficio Federale dello Sport
Dati dimensionali
4.500 mq superficie lotto
9.200 mq superficie edificata
Cronologia
2017 progettazione
Livello 0.00 m
Livello -3.80 m
Sezione A-A
Livello -9.80 m
Sezione B-B
Sezione di dettaglio - prospetto nord
