La casa rurale: Ca' Bianca
L’intervento prevede la ricostruzione di un edificio residenziale fortemente danneggiato a seguito dei gravi eventi sismici avvenuti nel 2012. L’edificio era situato in zona agricola e ricalca le caratteristiche tipiche dell’architettura rurale del luogo.
A causa degli ingenti danni subiti dall’edificio si è dovuto optare per un intervento di demolizione e ricostruzione del fabbricato, cercando comunque di mantenere inalterate le caratteristiche delle case rurali.
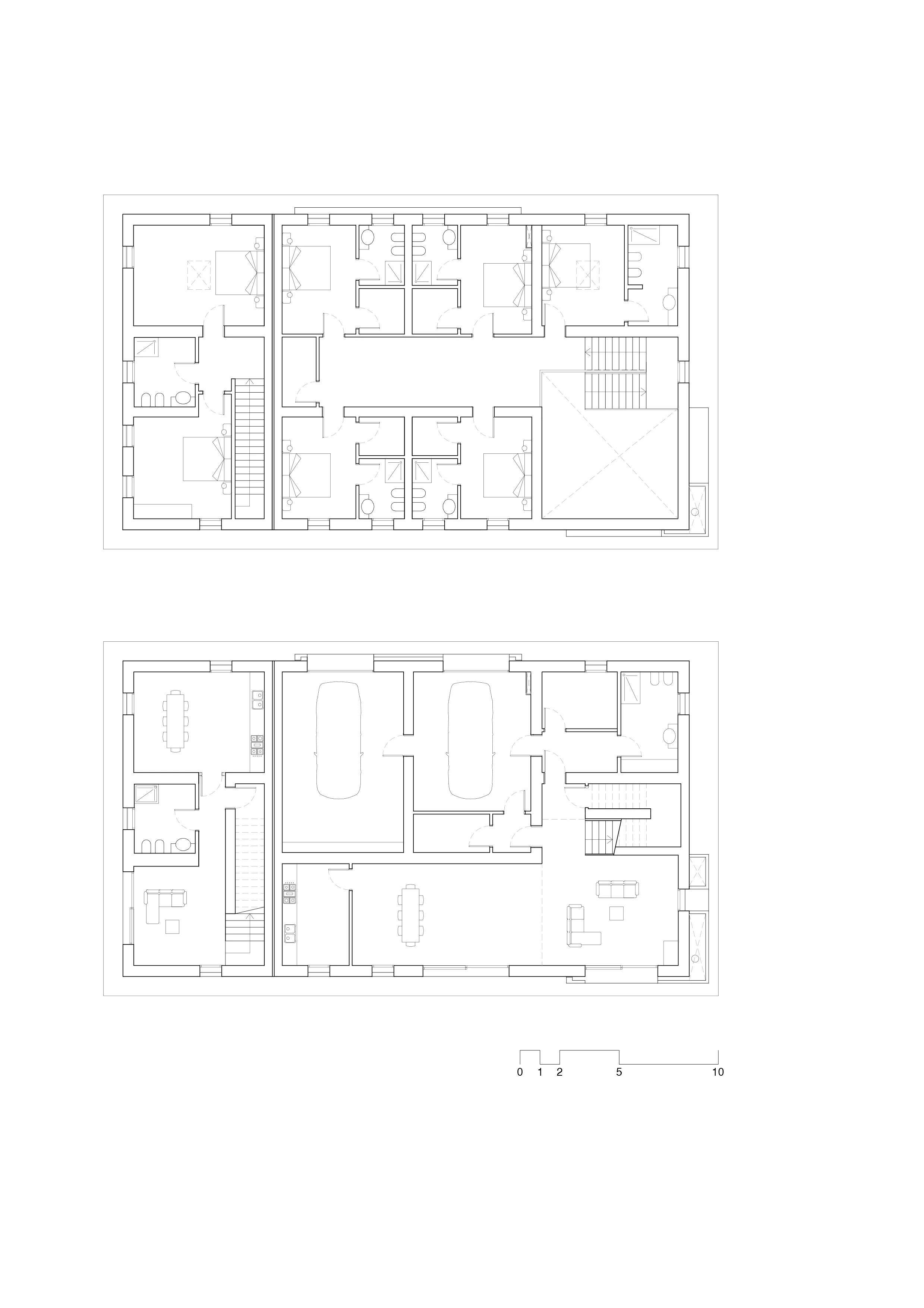
L’edificio continuerà ad essere suddiviso in due unità abitative e si svilupperà interamente su due piani. Al piano terra di entrambi gli alloggi si troverà la zona giorno, con cucina separata, un servizio igienico e un garage, mentre al piano superiore si troverà la zona notte.
Allo scopo di mantenere riconoscibili i caratteri costruttivi ed architettonici-decorativi dell’edificio originario, si è deciso di contornare, con una fascia di mattoni faccia a vista, tutte le aperture. Allo stesso modo si utilizzeranno i mattoni faccia a vista per evidenziare, anche dall’esterno, la presenza del camino, mentre tutto il resto dell’edificio sarà intonacato e tinteggiato con colori caldi che ben si armonizzino con l’ambiente circostante.
Luogo
Italia - Finale Emilia (MO)
Collaboratori
Arch. Ilaria Dell’Orco
Committente
Privato
Dati dimensionali
5.400 mq superficie lotto
620 mq superficie edificata
Cronologia
2014 progettazione
Stato di fatto
Piante di progetto
Sezioni
